Hliníkové vchodové dvere Aluprof
Maximálna stabilita, špičková tepelná izolácia a nekonečné možnosti prispôsobenia pre váš domov.
Zavolajte nám
+ 421 948 698 900
Prečo si vybrať hliníkové vchodové dvere Aluprof?
Vchodové dvere série AD
Panelové dvere série AD od spoločnosti Aluprof predstavujú spojenie bezpečného vstupu do obydlia s originálnym a moderným dizajnom, ktorý dodáva domu reprezentatívny vzhľad. Tieto dvere sú osadené okrasným panelom, ktorý prekrýva krídlo dverí buď z vnútornej, alebo z oboch strán, čím vzniká čistá plocha bez viditeľných línií profilov. Konštrukcia je založená na osvedčených systémoch MB-79N, MB-86 a MB-104 Passive, ktoré sú vhodné pre nízkoenergetické aj pasívne domy.
Vďaka vysokej pevnosti hliníkových profilov je možné vyrobiť dvere s rozmermi až 1,4 x 2,6 m a hmotnosťou do 140 kg. Systémy dosahujú špičkovú vodotesnosť (až trieda 7A) a sú vybavené bezpečnostným viacbodovým automatickým zámkom FUHR pre odolnosť proti vlámaniu v triede RC2
Porovnanie dverných systémov Aluprof série AD
| Parameter | MB-104 Passive | MB-86 | MB-79N |
| Charakteristika | Najmodernejší systém určený pre pasívnu a nízkoenergetickú výstavbu. | Jeden z najlepšie izolovaných systémov s vysokou tuhosťou profilov. | Najnovšia rada s výborným pomerom ceny a výkonu. |
| Tepelná izolácia (UD) | od 0,44 W/m²K | od 0,63 W/m²K | od 0,7 W/m²K |
| Hĺbka rámu | 95 mm | 77 mm | 70 mm |
| Hĺbka krídla | 95 mm | 77 mm | 70 mm |
| Hrúbka panelu | 65 – 95 mm | 44 – 77 mm | – |
| Max. rozmery krídla | do 1400 x 2600 mm | do 1200 x 2400 mm | do 1400 x 2600 mm |
Konštrukčné varianty výplní série AD
Výberom typu osadenia panelu ovplyvňujete nielen konečný dizajn vašich dverí, ale aj ich schopnosť udržiavať teplo.
| Parameter | BASIC | CLASSIC | EXCLUSIVE |
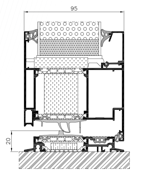
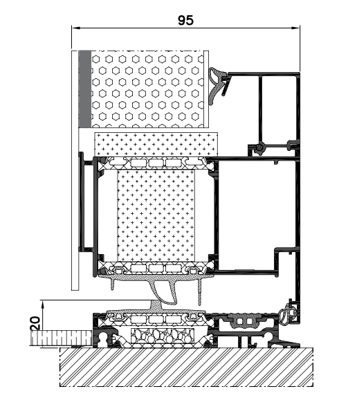
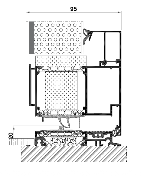
| Typ osadenia | Vsadená výplň | Prekryvný panel vonkajší | Prekryvný panel obojstranný |
| Vizuál (Rez) | ![]() | ![]() | ![]() |
| Popis variantu | Výplň je vložená do dverného krídla, čím sú línie profilu priznané z oboch strán. | Panel prekrýva krídlo dverí z vonkajšej strany, čím vytvára modernú čistú plochu z exteriéru. | Panel prekrýva krídlo z oboch strán. Vzniká tak dokonale hladká plocha a maximálna izolácia. |
| Zasklenie | 3-sklo (Ug 0,5 – 0,7 W/m²K) | 3-sklo (Ug 0,5 – 0,7 W/m²K) | 4-sklo (Ug 0,5 – 0,7 W/m²K) |
| Hrúbka panelu | 44 a 52 mm | 44 a 65 mm | 70 mm (MB-79N), 77 mm (MB-86), 95 mm (MB-104) |
| Izolácia (UD) MB-79N | od 1,0 W/m²K | od 0,9 W/m²K | od 0,7 W/m²K |
| Izolácia (UD) MB-86 | od 0,8 W/m²K | od 0,64 W/m²K | od 0,63 W/m²K |
| Izolácia (UD) MB-104 | od 0,63 W/m²K | od 0,48 W/m²K | od 0,44 W/m²K |
Vchodové dvere série AG
Vchodové dvere série AG od spoločnosti Aluprof predstavujú ideálnu voľbu pre tých, ktorí hľadajú vysokú kvalitu, bezpečnosť a variabilitu výplní. Na rozdiel od série AD, dvere série AG sú navrhnuté pre osadenie izolačným sklom alebo dverným panelom priamo do krídla dverí (tzv. vsadená výplň). Táto séria využíva špičkové hliníkové profilové systémy, ktoré spĺňajú najprísnejšie nároky na tepelnú izoláciu, stabilitu a moderný vzhľad.
Vďaka vysokej pevnosti hliníkových profilov je možné realizovať dvere s rozmermi až 1,4 x 2,6 m. Systémy série AG dosahujú vynikajúce parametre tesnosti a sú štandardne vybavené bezpečnostným viacbodovým automatickým zámkom pre maximálnu ochranu vášho domova.
Porovnanie dverných systémov Aluprof série AG
| Parameter | MB-104 Passive | MB-86 | MB-79N |
| Charakteristika | Najmodernejší systém určený pre pasívnu a nízkoenergetickú výstavbu. | Jeden z najlepšie izolovaných systémov s vysokou tuhosťou profilov. | Najnovšia rada s výborným pomerom ceny a výkonu vďaka novým izolantom. |
| Tepelná izolácia (UD) | od 0,44 W/m²K | od 0,63 W/m²K | od 0,7 W/m²K |
| Hĺbka rámu | 95 mm | 77 mm | 70 mm |
| Hĺbka krídla | 95 mm | 77 mm | 70 mm |
| Max. rozmery krídla | do 1400 x 2600 mm | do 1200 x 2400 mm | do 1400 x 2600 mm |
Konštrukčné varianty výplní série AG
Pri sérii AG si môžete vybrať typ výplne, ktorý najlepšie vyhovuje vašim estetickým a izolačným nárokom.
| Parameter | BASIC | CLASSIC | EXCLUSIVE |
| Typ osadenia | Vsadená výplň | Prekryvný panel vonkajší | Prekryvný panel obojstranný |
| Vizuál (Rez) | ![]() | ![]() | ![]() |
| Popis | Výplň je vsadená do krídla dverí s priznanými líniami hliníkového profilu z oboch strán. | Panel prekrýva dverné krídlo z vonkajšej strany, čím vytvára hladký a moderný vzhľad z exteriéru. | Panel prekrýva krídlo z oboch strán, čím vzniká dokonale celistvá plocha a maximálna izolácia. |
| Zasklenie | 3-sklo (Ug 0,5 – 0,7 W/m²K) | 3-sklo (Ug 0,5 – 0,7 W/m²K) | 4-sklo (Ug 0,5 – 0,7 W/m²K) |
| Hrúbka panelu | 44 a 52 mm | 44 – 65 mm | 70 mm (MB-79N), 77mm (MB-86), 95 mm (MB-104) |
| Izolácia (UD) MB-104 | od 0,63 W/m²K | od 0,48 W/m²K | od 0,44 W/m²K |
| Izolácia (UD) MB-86 | od 0,8 W/m²K | od 0,64 W/m²K | od 0,63 W/m²K |
| Izolácia (UD) MB-79N | od 1,0 W/m²K | od 0,9 W/m²K | od 0,7 W/m²K |
Vchodové dvere série AP
Panelové dvere série AP od spoločnosti Aluprof predstavujú ideálnu rovnováhu medzi funkčnosťou a modernou estetikou. Sú navrhnuté pre osadenie okrasným dverným panelom, ktorý môže byť do krídla vsadený, alebo ho prekrývať z jednej či oboch strán, čím vytvára čistú plochu bez viditeľných línií profilov. Konštrukcia je postavená na špičkových systémoch MB-79N, MB-86N a MB-104 Passive, ktoré sú vhodné pre nízkoenergetické a pasívne domy.
Vďaka vysokej pevnosti hliníkových profilov je možné realizovať dvere s rozmermi až 1,4 x 2,6 m a hmotnosťou do 140 kg. Systémy dosahujú vynikajúcu vodotesnosť (až trieda 7A) a sú štandardne vybavené bezpečnostným viacbodovým automatickým zámkom FUHR pre odolnosť proti vlámaniu v triede RC2.
Porovnanie dverných systémov Aluprof série AP
| Parameter | MB-104 Passive | MB-86N | MB-79N | MB-86N PIVOT |
| Charakteristika | Špičkový systém pre pasívnu a nízkoenergetickú výstavbu. | Jeden z najlepšie izolovaných systémov vo svojej kategórii. | Najnovšia rada s výborným pomerom ceny a výkonu. | Dvere s posunutou osou otáčania pre nadrozmerné krídla. |
| Tepelná izolácia (UD) | od 0,50 W/m²K | od 0,66 W/m²K | od 0,85 W/m²K | od 0,84 W/m²K |
| Hĺbka rámu / krídla | 95 mm | 77 mm | 70 mm | 77 mm |
| Hrúbka panelu | do 95 mm | 44 i 77 mm | 44 i 70 mm | 77 mm |
| Max. rozmery krídla | do 1400 x 2600 mm | do 1400 x 2600 mm | do 1400 x 2600 mm | do 1400 x 2600 mm |
| Max. hmotnosť krídla | — | — | — | do 500 kg |
| Vodotesnosť | Trieda E1200 | Trieda E900 | Trieda E900 | Trieda 4A |
Konštrukčné varianty výplní série AP
| Parameter | BASIC | CLASSIC | EXCLUSIVE |
| Typ osadenia | Vsadená výplň | Prekryvný panel vonkajší | Prekryvný panel obojstranný |
| Vizuál (Rez) | ![]() | ![]() | ![]() |
| Zasklenie | 3-sklo (Ug 0,5 – 0,7 W/m²K) | 3-sklo (Ug 0,5 – 0,7 W/m²K) | 4-sklo (Ug 0,5 – 0,7 W/m²K) |
| Hrúbka panelu | 44 a 52 mm | 44 a 65 mm | 70 mm (MB-79N), 77 mm (MB-86N) a 95 mm (MB-104) |
| UD (MB-104 Passive) | od 0,63 W/m²K | od 0,48 W/m²K | od 0,50 W/m²K |
| UD (MB-86N) | od 0,8 W/m²K | od 0,64 W/m²K | od 0,66 W/m²K |
| UD (MB-79N) | od 1,0 W/m²K | od 1,0 W/m²K | od 0,85 W/m²K |
Výplne dverí
Vyberte si dizajn, ktorý vás charakterizuje
Konštrukcia dverí Aluprof je len začiatok. To, čo dáva vašim dverám tvár, je ich výplň. Spolupracujeme s európskymi lídrami v oblasti dverných výplní, spoločnosťami Perito a Dindecor, aby sme vám priniesli stovky dizajnových možností – od klasickej elegancie až po ultra-moderný minimalizmus.
Kovania a kľučky
Detail, ktorý cítite pri každom dotyku
Kľučka nie je len ovládací prvok, je to šperk vašich dverí. Vybrali sme pre vás kovania, ktoré kombinujú špičkovú ergonómiu, vysokú bezpečnosť a materiálovú stálosť. Či už hľadáte minimalistické línie pre hliníkové systémy alebo klasický komfort, naše katalógy pokrývajú všetky štýly.
Systémové kovania Aluprof
Ideálne pre hliníkové dvere
Kovania navrhnuté priamo pre systémy Aluprof zaručujú stopercentnú technickú kompatibilitu a čistý dizajn, pričom ponúkajú široký výber moderných štvorcových aj oblých tvarov v nerezovom prevedení so špeciálnymi povrchovými úpravami, ako sú eloxovanie či práškové lakovanie.
Dizajnové a funkčné kľučky
Pre PVC a hliníkové systémy
Ponúkame širokú škálu tvarov od overenej klasiky až po moderné trendy, ktorá je ideálna pre každého, kto hľadá špecifický vizuálny detail, pričom na výber máte rôzne typy roziet, bezpečnostné kľučky s ochranou proti vlámaniu a bohatú paletu farieb vrátane populárnej čiernej a antracitovej.









